承插活接头简介:
承插活接头由圆钢或钢锭模锻成型后机加工的管道连接件,它的连接形式分承插焊接,承插焊接是将钢管插入承插孔内进行焊接,因此,被称为“承插活接头”。
承插活接头的品种有等径和异径。
承插活接头由插口、承口、承插槽等组成,其特征在于在插口上有承插槽,插口、承口分别位于两端;与现有技术相比,设计合理、操作简单、实用性强,提高操作质量与便捷性。
承插活接头实物图:(网上产品图片仅供参考,交货按实物为准)
![]() | ![]() | ![]() |
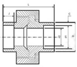
承插活接头结构图 (Socket Union Structure)

活接头
Union
承插活接头参数表
公称通径 Nominal Diameter | 外径Outside Diameter | 壁厚Wall Thickness | 承插孔径 | 流通孔径Water way Bore | 承插孔深度Depth of Socket | 公称装配长度Length AssemNominal | |||
Dmin | Cmin | d1 | d2 | Jmin | L | ||||
DN | NPS | 承插焊 | 螺纹 | 承插焊 | 螺纹 | 承插焊 Socket | 承插焊、螺纹 Socket & Threaded
| 承插焊 Socket | 承插焊、螺纹 Socket & Threaded
|
6 | 1/8 | 21.8 | 14.7 | 3.2 | 2.5 | 10.65 | 6.43 | 10 | 41.4 |
8 | 1/4 | 21.8 | 19 | 3.3 | 3.1 | 14.1 | 9.45 | 10 | 41.4 |
10 | 3/8 | 25.9 | 22.9 | 3.5 | 3.2 | 17.55 | 13.51 | 10 | 46 |
15 | 1/2 | 31.2 | 27.7 | 4.1 | 3.8 | 21.7 | 17.07 | 10 | 49 |
20 | 3/4 | 37.1 | 33.5 | 4.3 | 4 | 27.05 | 21.39 | 13 | 56.9 |
25 | 1 | 45.5 | 41.4 | 5 | 4.6 | 33.8 | 27.74 | 13 | 62 |
32 | 1.1/4 | 54.9 | 50.5 | 5.3 | 4.9 | 42.55 | 35.36 | 13 | 71.1 |
40 | 1.1/2 | 61.5 | 57.2 | 5.6 | 5.1 | 48.65 | 41.2 | 13 | 76.5 |
50 | 2 | 75.2 | 70.1 | 6.1 | 5.6 | 61.1 | 52.12 | 16 | 86.1 |
65 | 2.1/2 | 91.7 | 85.3 | 7.7 | 7.1 | 73.8 | 64.31 | 16 | 102.4 |
80 | 3 | 109.2 | 102.4 | 8.4 | 7.7 | 89.8 | 77.27 | 16 | 109 |
上述尺寸符合MSS SP-83、BS3799标准。
Above dimensions acc.to the standard of MSS SP-83、BS3799




