螺纹活接头(由壬)简介:
螺纹活接头,是指带螺纹的管道连接件,是工业和生活中最常见的一种管件,螺纹活接头使管道的连接变得更简单,拆卸更换也更容易,大大节省了管道连接的成本。
工业上用的螺纹活接头一般是金属制造,耐压较高,材料有碳钢,不锈钢,合金钢,黄铜等;具有强度高、延性好,连接方便、快捷、操作简单、适用性强等特点。
螺纹活接头根据客户要求也可以做成内外丝活接头,或异径活接头、异径内外丝活接头。
广泛用于国内大型电站配套工程,海水、蒸汽、冷水、热水、氧气、饮水、制冷、油、燃气、医用气体污水处理工程,市政工程,化工,炼油,冶金,化肥,造纸,医药等行业等。
螺纹活接头(由壬)实物图:(网上产品图片仅供参考,交货按实物为准)
![]() | ![]() | ![]() |
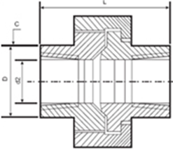
螺纹活接头结构图 (Threaded Union Structure)

活接头
Union
螺纹活接头(由壬)参数表
公称通径 | 外径 | 壁厚 | 承插孔径Socket Bore | 流通孔径Water way Bore | 承插孔深度Depth of Socket | 公称装配长度Length AssemNominal | |||
Dmin | Cmin | d1 | d2 | Jmin | L | ||||
DN | NPS | 承插焊 | 螺纹 | 承插焊 | 螺纹 | 承插焊 Socket | 承插焊、螺纹Socket & Threaded | 承插焊 Socket | 承插焊、螺纹Socket & Threaded |
6 | 1/8 | 21.8 | 14.7 | 3.2 | 2.5 | 10.65 | 6.43 | 10 | 41.4 |
8 | 1/4 | 21.8 | 19 | 3.3 | 3.1 | 14.1 | 9.45 | 10 | 41.4 |
10 | 3/8 | 25.9 | 22.9 | 3.5 | 3.2 | 17.55 | 13.51 | 10 | 46 |
15 | 1/2 | 31.2 | 27.7 | 4.1 | 3.8 | 21.7 | 17.07 | 10 | 49 |
20 | 3/4 | 37.1 | 33.5 | 4.3 | 4 | 27.05 | 21.39 | 13 | 56.9 |
25 | 1 | 45.5 | 41.4 | 5 | 4.6 | 33.8 | 27.74 | 13 | 62 |
32 | 1.1/4 | 54.9 | 50.5 | 5.3 | 4.9 | 42.55 | 35.36 | 13 | 71.1 |
40 | 1.1/2 | 61.5 | 57.2 | 5.6 | 5.1 | 48.65 | 41.2 | 13 | 76.5 |
50 | 2 | 75.2 | 70.1 | 6.1 | 5.6 | 61.1 | 52.12 | 16 | 86.1 |
65 | 2.1/2 | 91.7 | 85.3 | 7.7 | 7.1 | 73.8 | 64.31 | 16 | 102.4 |
80 | 3 | 109.2 | 102.4 | 8.4 | 7.7 | 89.8 | 77.27 | 16 | 109 |
上述尺寸符合MSS SP-83、BS3799标准。
Above dimensions acc.to the standard of MSS SP-83、BS3799
备注(note):客户定货时需注明螺纹型号。




